Prostorný dvoupokojový byt s dvorkem v novém komplexu – ideální pro celoroční bydlení

 Slunečné pobřeží, Rio 2

98 500 €

104м2950 €/м2

2 pokoje, 1 ložnice 1 balkón, 1 koupelna
Stavba 2026
nezařízený
0 od 3
1 km
Informace o nemovitosti
  • ID:38421
  • Město: Slunečné pobřeží
  • Complex:Rio 2
  • Stavba:2026
  • Vybavení:Nezařízený
  • Vzdálenost od moře:1 km
  • Výhled:Město
  • Sezónnost:Celoroční využití
  • Patro:0 od 3
  • Konstrukce:Cihla
  • Topení:Elektrina
  • Ostraha:Ne
  • Výtah:Ano
Informace


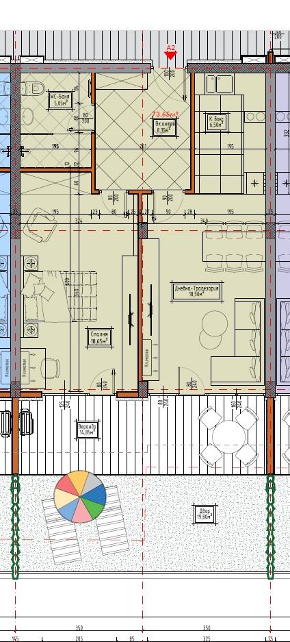
Představujeme Vám dvoupokojový byt o celkové ploše 103,66 m² s dvorkem 19,80 m², nacházející se v moderním komplexu ve výstavbě, navrženém s konceptem celoročního bydlení a komfortního rekreačního využití. Nemovitost nabízí všechny výhody moderního stavebnictví a funkční dispozice, kombinované s vybavením a zelenými plochami pro plnohodnotný život u moře.

Byt se prodává ve stavu shell, připravený k dokončení podle individuálních preferencí vlastníka. Stěny, podlahy a stropy jsou omítnuty a vyrovnány, vstupní dveře, okna a balkónové dveře jsou instalovány, a všechny elektrické, vodovodní a kanalizační instalace jsou kompletně položeny. Balkony a terasy jsou dokončeny, a společné prostory komplexu jsou plně funkční, včetně výtahu pro pohodlí obyvatel.

Komplex se nachází ve výborné lokalitě – nový supermarket LIDL je jen 800 metrů daleko a k moři je to pěšky pohodlnou cyklostezkou, autem jen dvě minuty. Všechny byty mají výhled na moře, a každý má sklad v suterénu, v ceně bytu.

Komplex má Akt 14, očekávané dokončení – léto 2026, a nabízí všechny moderní vybaveníuzavřený areál, bazén a grilovací zónu, což vytváří příjemné a bezpečné prostředí pro obyvatele.

Flexibilní finanční podmínky – požadována počáteční platba 50 % (včetně zálohy), zbytek částky je splácen podle individuálního harmonogramu do dokončení výstavby, což činí nákup dostupným a pohodlným a umožňuje investorovi plánovat rozpočet s klidem.

Tento dvoupokojový byt je vynikající volbou pro ty, kteří hledají moderní bydlení s výhledem na moře, funkční dispozici a investiční potenciál, kombinovaný s vybavením, bezpečností a blízkostí pláže a místní infrastruktury.

Zobrazit na mapě