Prostorný apartmán se 2 ložnicemi a panoramatickou lodžií v novém domě v rezidenční čtvrti Slaveykov, Burgas

 Славейков, Ona Homes

267 507 €

134м22000 €/м2

3 pokoje, 2 ložnice 1 balkón, 2 koupelny
Stavba 2029
nezařízený
6 od 9
3 km
Informace o nemovitosti
  • ID:38848
  • Město: Burgas
  • Complex:Ona Homes
  • Stavba:2029
  • Vybavení:Nezařízený
  • Vzdálenost od moře:3 km
  • Výhled:Město
  • Sezónnost:Celoroční využití
  • Patro:6 od 9
  • Konstrukce:Cihla
  • Topení:Elektrina
  • Ostraha:Ne
  • Výtah:Ano
Informace


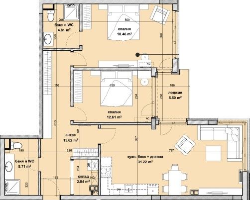
Nabízíme vám působivý apartmán se 2 ložnicemi v novém moderním bytovém domě v čtvrti Slaveykov – jedné z nejvyhledávanějších oblastí Burgasu. Nemovitost se nachází v šestém patře a má rozlohu 133,75 m², přičemž nabízí prostornost, funkčnost a vynikající možnosti pro vytvoření útulného domova.

Dispozice je velmi dobře promyšlená a zahrnuje vstupní chodbu, prostorný obývací pokoj s kuchyňským koutem, dvě ložnice, z nichž jedna má vlastní koupelnu, další koupelnu s toaletou, skladovací místnost a lodžii s přístupem ze všech tří místností, což zajišťuje dostatek přirozeného světla a pocit otevřeného prostoru. Byt má jižní orientaci. Tento typ dispozice je vzácný a nabízí komfort jak pro rodiny, tak pro osoby hledající více prostoru.

Nemovitost se prodává ve stavu na dokončení (BDS), což umožňuje její dokončení podle individuálních představ a stylu budoucích majitelů.

Budova bude mít devět nadzemních podlaží. V přízemí budou obchodní prostory, zatímco na ostatních patrech budou byty s 1 ložnicí, byty se 2 ložnicemi, a také prostorné mezonety na osmém a devátém patře. K dispozici budou také garáže a parkovací místa v podzemních podlažích – úroveň minus jedna a úroveň minus dvě, což představuje významnou výhodu v městském prostředí.

Lokalita je velmi praktická – v blízkosti se nacházejí velké obchodní řetězce Kaufland, Lidl a Billa, stejně jako nákupní centrum Mall Galleria Burgas. Oblast nabízí také polikliniku, školy, školky a mnoho dalších služeb.

Zahájení výstavby je plánováno na červen 2026 a doba výstavby činí 36 měsíců. Nemovitost představuje výbornou příležitost jak pro dlouhodobou investici, tak pro budoucí rodinné bydlení.

Nemovitost, která nabízí více než standard – prostor, světlo a potenciál stát se skutečným domovem.

Bez poplatku za údržbu.

Zobrazit na mapě