Nový dvoupokojový byt v moderním rezidenčním komplexu ve čtvrti Horizont, Burgas

 , Smokinite 5

95 000 €

68м21402 €/м2

2 pokoje, 1 ložnice 1 balkón, 1 koupelna
Stavba 2028
nezařízený
9 od 9
3 km
Informace o nemovitosti
  • ID:38651
  • Město: Burgas
  • Complex: Smokinite 5
  • Stavba:2028
  • Vybavení:Nezařízený
  • Vzdálenost od moře:3 km
  • Výhled:Město
  • Sezónnost:Celoroční využití
  • Patro:9 od 9
  • Konstrukce:Cihla
  • Topení:Elektrina
  • Ostraha:Ne
  • Výtah:Ano
Informace

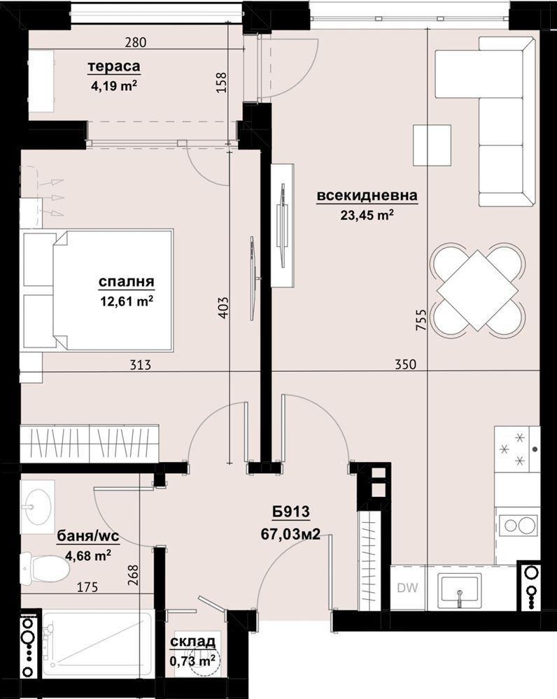
Nabízíme k prodeji nový dvoupokojový byt o rozloze 67,78 m², nacházející se v devátém patře inovativního rezidenčního komplexu s moderní architekturou a působivým designem. Budova se vyznačuje vysokou kvalitou provedení, současným stylem a funkčními řešeními, vytvořenými s důrazem na každý detail a v souladu s požadavky na komfortní a harmonický způsob života.

Byt je navržen s praktickým a promyšleným uspořádáním, které zajišťuje maximální pohodlí a optimální využití prostoru. Dispozice zahrnuje prostorný obývací pokoj s kuchyňským koutem, útulnou ložnici, koupelnu s WC, vstupní chodbu a terasu. Velká okna zajišťují dostatek přirozeného světla, čímž vytvářejí světlou a příjemnou atmosféru v bytě.

Komplex je moderní rezidenční projekt s celkem 223 byty, rozdělenými do dvou devítipodlažních sekcí, z nichž každá má samostatný vstup, což poskytuje větší komfort a soukromí pro obyvatele. Architektura kombinuje moderní estetiku, funkčnost a kvalitní stavební materiály, což zaručuje dlouhou životnost a vysoký standard bydlení.

Obyvatelům budou k dispozici různé vybavení a služby vytvářející příjemné prostředí pro život, včetně dětského hřiště, multifunkčního sportovního hřiště, venkovní fitness zóny a také bohatě upravených zelených ploch s místy pro odpočinek, které přinášejí klid a rovnováhu v dynamickém městském životě.

Budova se nachází v jedné z nejatraktivnějších a nejrychleji se rozvíjejících částí Burgasu – nové čtvrti Horizont, která se formuje jako moderní rezidenční oblast s výbornou infrastrukturou. Lokalita nabízí snadný přístup k hlavním obchodním a servisním centrům, jako jsou PLAZZA Mall, Lidl, Kaufland a DECATHLON, stejně jako k mnoha obchodům, restauracím a dopravním spojením.

Tato nemovitost představuje výbornou příležitost ke koupi nového bytu v Burgasu, který kombinuje moderní architekturu, strategickou polohu a komfortní prostředí pro život, vhodné jak pro vlastní bydlení, tak jako investici s dlouhodobou hodnotou.

Zobrazit na mapě