Klid a harmonie 300 m od pláže: dvoupokojový byt s možností přestavby na třípokojový v Sarafově, novostavba. Akt 16!

 Сарафово

110 000 €

89м21239 €/м2

2 pokoje, 1 ložnice 1 balkón, 1 koupelna
Stavba 2025
nezařízený
3 od 5
300 m
Informace o nemovitosti
  • ID:37786
  • Město: Burgas
  • Stavba:2025
  • Vybavení:Nezařízený
  • Vzdálenost od moře:300 m
  • Výhled:Město
  • Sezónnost:Celoroční využití
  • Patro:3 od 5
  • Konstrukce:Cihla
  • Topení:Elektrina
  • Ostraha:Ne
  • Výtah:Ano
Informace

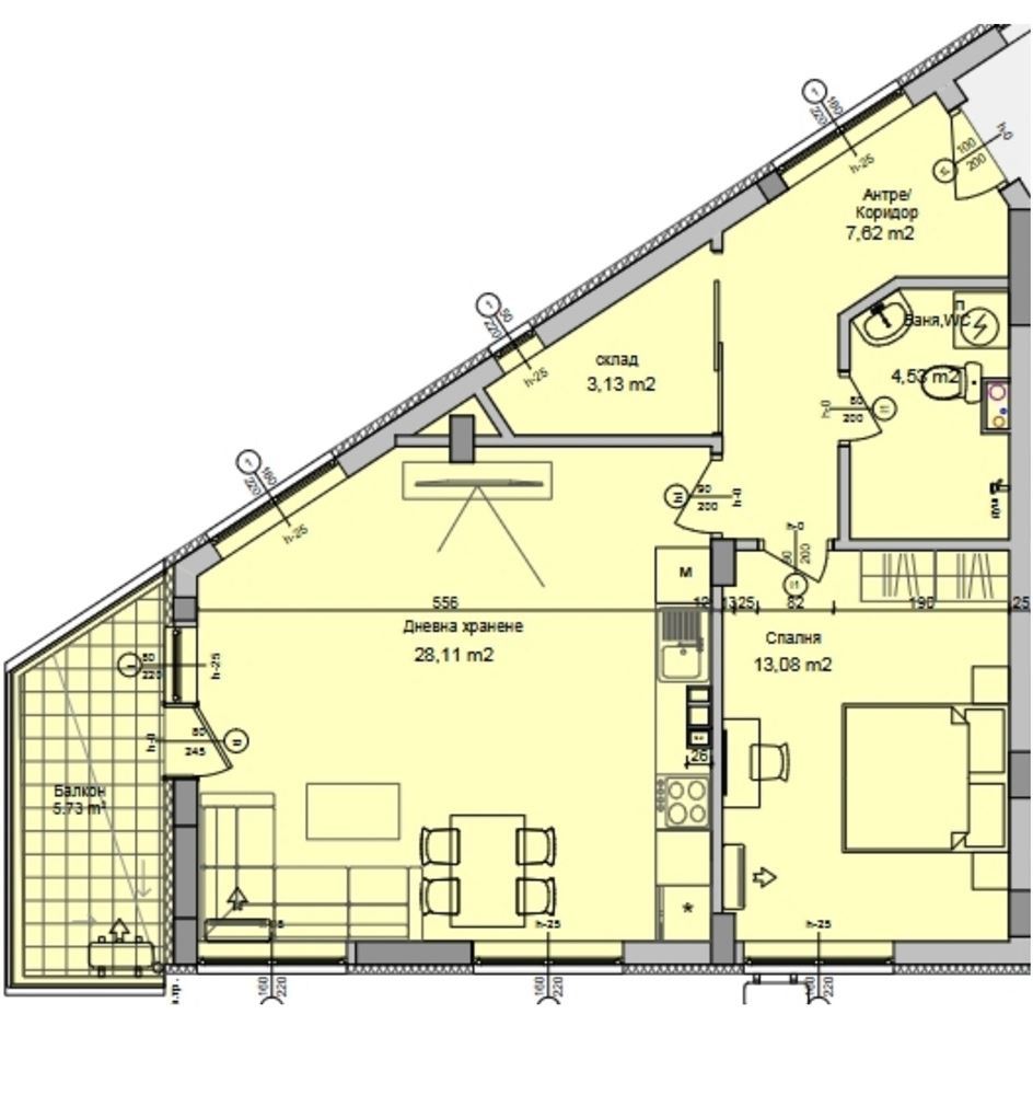
Představujeme vám prostorný a světlý byt v prestižní čtvrti Sarafovo v Burgasu – ideální volba pro dům u moře, prázdninové bydlení nebo investici s vynikajícím potenciálem pro pronájem. Nemovitost je novostavba a nachází se ve třetím patře moderní budovy s výtahem, pouhých 300 metrů od zlatých písků a mořského pobřeží. S celkovou plochou 88,77 m² nabízí byt dobře promyšlené rozvržení: vstupní halu, prostorný obývací pokoj s kuchyní a východem na pohodlnou terasu, jednu samostatnou ložnici, velkou a praktickou komoru a koupelnu s toaletou. Byt je podle projektu dvoupokojový, ale díky funkčnímu uspořádání je možné jej přestavět na třípokojový – praktické řešení pro rodiny nebo pro ty, kteří hledají další ložnici nebo pracovní prostor.

Nemovitost se prodává ve stavu „tapa“ – výhoda pro každého, kdo si přeje realizovat svůj vlastní styl a interiérový koncept bez kompromisů. Prostorné místnosti, velká okna a přístup na terasu vytvářejí pocit vzdušnosti a svobody, zatímco moderní budova s výtahem zajišťuje pohodlí v každodenním životě.

Lokalita je perfektní: pár minut od pláže, s rychlým přístupem k pobřeží pro ranní procházky a odpolední relaxaci. V okolí najdete obchody, kavárny a komplex Atlantis, který zaručuje všechny potřebné vymoženosti na dosah ruky. Oblast je klidná, příjemná a oblíbená pro celoroční bydlení i pro sezónní dovolenou. Bez poplatku za údržbu. S aktem 16!

Pokud hledáte kombinaci prostoru, pohodlí a mořského kouzla, je tento byt v Sarafově vynikající volbou. Kontaktujte nás pro více informací a domluvení prohlídky.


Zobrazit na mapě