Exkluzivní mezonetový apartmán se 2 ložnicemi a panoramatickou terasou v novém domě v rezidenční čtvrti Slaveykov, Burgas – prostor, luxus a prestiž

 Славейков, Ona Homes

377 160 €

314м21200 €/м2

3 pokoje, 2 ložnice 1 balkón, 2 koupelny
Stavba 2029
nezařízený
8 od 9
3 km
Informace o nemovitosti
  • ID:38849
  • Město: Burgas
  • Complex:Ona Homes
  • Stavba:2029
  • Vybavení:Nezařízený
  • Vzdálenost od moře:3 km
  • Výhled:Město
  • Sezónnost:Celoroční využití
  • Patro:8 od 9
  • Konstrukce:Cihla
  • Topení:Elektrina
  • Ostraha:Ne
  • Výtah:Ano
Informace


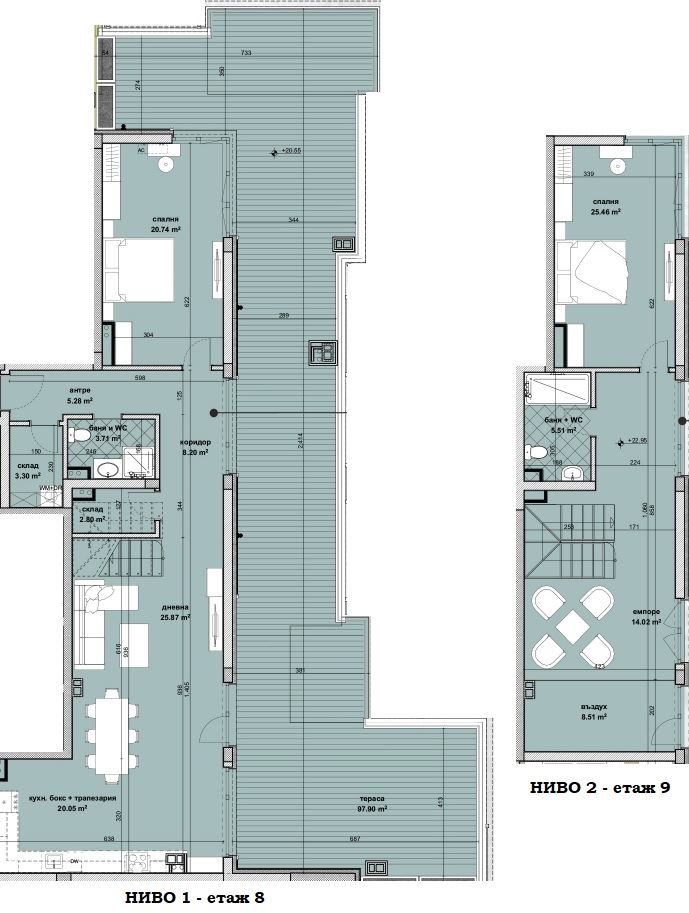
Představujeme vám výjimečný mezonetový apartmán se 2 ložnicemi, umístěný v osmém a devátém patře nového moderního bytového domu v čtvrti Slaveykov. Nemovitost zaujme impozantní plochou 314,30 m², která spojuje prostor, funkčnost a pocit luxusního městského bydlení.

První úroveň zahrnuje vstupní chodbu, ložnici, koupelnu s toaletou, skladovací místnost a prostorný obývací pokoj s kuchyňským koutem, ze kterého vede vnitřní schodiště na druhou úroveň. Na této úrovni se nachází také impozantní terasa o rozloze 97,90 m², která nabízí výjimečný prostor pro odpočinek, zábavu a panoramatické výhledy. Mezonet má východní orientaci.

Druhá úroveň je navržena jako klidová obytná zóna a zahrnuje otevřenou galerii, druhou ložnici a koupelnu s toaletou. Tato architektonická koncepce jasně odděluje denní a noční část a zajišťuje maximální komfort.

Nemovitost se prodává ve stavu na dokončení (BDS), což umožňuje individuální úpravu interiéru.

Budova bude mít devět nadzemních podlaží. V přízemí budou obchodní prostory, zatímco na ostatních patrech budou byty s 1 ložnicí, byty se 2 ložnicemi a exkluzivní mezonetové apartmány na osmém a devátém patře. K dispozici jsou také garáže a parkovací místa v podzemních podlažích – minus první a minus druhé.

Lokalita je velmi vyhledávaná – v blízkosti se nachází Kaufland, Lidl a Billa a také Mall Galleria Burgas. Oblast nabízí školy, školky, polikliniku a další služby.

Zahájení výstavby je plánováno na červen 2026, doba výstavby činí 36 měsíců. Jedná se o výjimečnou investiční příležitost. Tento mezonet je vzácnou nabídkou – spojuje prostor, architektonickou svobodu a prestižní lokalitu.

Bez poplatku za údržbu.

Zobrazit na mapě