Byt se dvěma ložnicemi v novostavbě v Meden Rudnik, zóna B

 Меден рудник - зона Б

106 700 €

97м21100 €/м2

3 pokoje, 2 ložnice 2 balkóny, 1 koupelna
Stavba 2029
nezařízený
4 od 6
3 km
Informace o nemovitosti
  • ID:38870
  • Město: Burgas
  • Stavba:2029
  • Vybavení:Nezařízený
  • Vzdálenost od moře:3 km
  • Výhled:Město
  • Sezónnost:Celoroční využití
  • Patro:4 od 6
  • Konstrukce:Cihla
  • Topení:Elektrina
  • Ostraha:Ne
  • Výtah:Ne
Informace


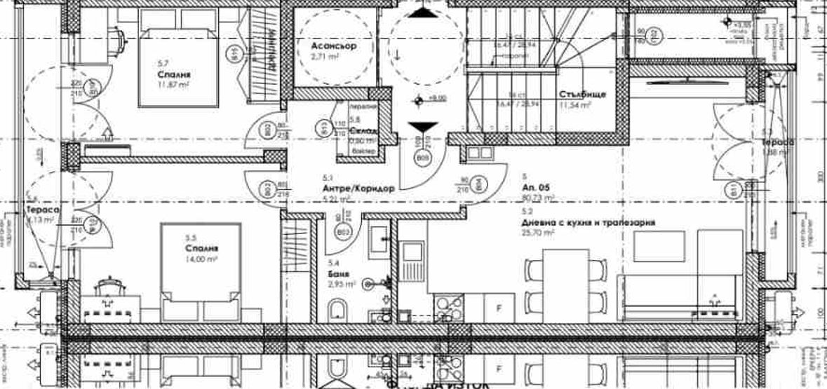
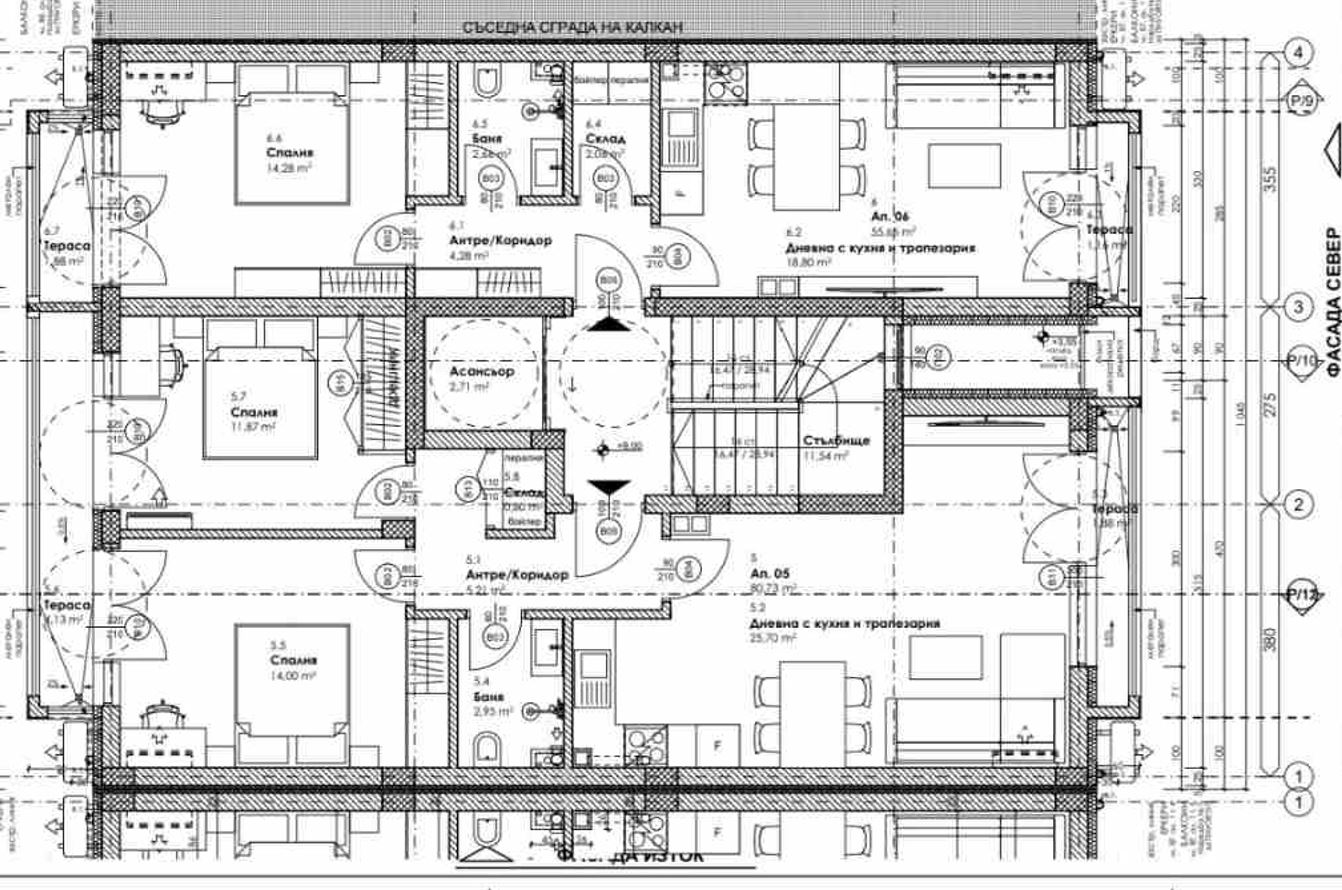
Nabízíme prostorný byt se dvěma ložnicemi o rozloze 97 m², umístěný ve čtvrtém obytném podlaží moderní novostavby v preferované části Meden Rudnik – zóna B. Nemovitost je skvělou volbou pro rodinné bydlení, protože spojuje komfort, funkčnost a klidné městské prostředí s dobrou infrastrukturou.

Byt má dvě orientace, které zajišťují dostatek přirozeného světla po celý den a dobrou ventilaci. Dispozice je velmi praktická a promyšlená – vstupní chodba, prostorný obývací pokoj s kuchyňským koutem a vstupem na terasu, dvě samostatné ložnice s přístupem na druhou terasu, koupelna s toaletou a skladovací místnost, která zvyšuje praktičnost.

Byt se prodává ve stavu BDS (k dokončení), což umožňuje kompletní dokončení podle vlastního vkusu, stylu a návrhu, bez kompromisů. To je velká výhoda pro ty, kteří si chtějí vytvořit svůj vysněný domov od základu.

Budova je malá a komorní, pouze 11 bytů na šesti podlažích, což zajišťuje klidnější bydlení s menším počtem sousedů. K dispozici je výtah, venkovní i podzemní parkovací stání a také dva garáže, které lze dokoupit za ceny od 10.000 do 45.000 euro.

Lokalita je jednou z hlavních výhod – v okolí se nachází obchody, školky, školy a dobré dopravní spojení. To činí byt vhodným jak pro rodiny, tak pro dlouhodobou investici s potenciálem růstu hodnoty.

Tato nemovitost představuje rovnováhu mezi novostavbou, funkčností a kvalitním prostředím pro život, což z ní činí bezpečnou a perspektivní volbu.


Zobrazit na mapě